Up The Habitat Condo in Bangkok » The Many Facets » (2007-09-30) Walls come and go Prev Next Slideshow

 At first page  Next image  Index page
 
 
 
 
 
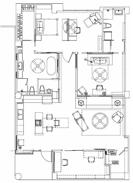
  floor_plan_2007-08-02.jpg - Here's the floor plan again to help you understand the emerging living space.

1- Lower left is the entrance.  2- Jon's office is lower central.  3- Utility closet is lower right.  4- Kitchen/dining area just above the entrance. 5- Living room to the right just above Jon's office.  6- Guest bedroom to the right above the living room. 7- Guest bath/laundry upper right. 8- Marc's office upper central area. 9- Master bedroom upper left. 10- Master bath central left. 11- Half bath between kitchen and master bath.  
P1000292
P1000339
P1000307
P1000294
P1000308

  | 1 | Here's the floor plan again to help you understand the emerging living space. 1- Lower left is the entrance. 2- Jon's office is lower central. 3- Utility closet is lower right. 4- Kitchen/dining area just above the entrance. 5- Living room to the right just above Jon's office. 6- Guest bedroom to the right above the living room. 7- Guest bath/laundry upper right. 8- Marc's office upper central area. 9- Master bedroom upper left. 10- Master bath central left. 11- Half bath between kitchen and master bath. | floor_plan_2007-08-02.jpg | 2007-08-02 19:19:30 Download
Total images: 28 | Help