Up The Habitat Condo in Bangkok » The Many Facets » Plans and Concepts Prev Next

 Previous image  At last page  Index page
 
 
 
 
floor_plan_2007-02-15
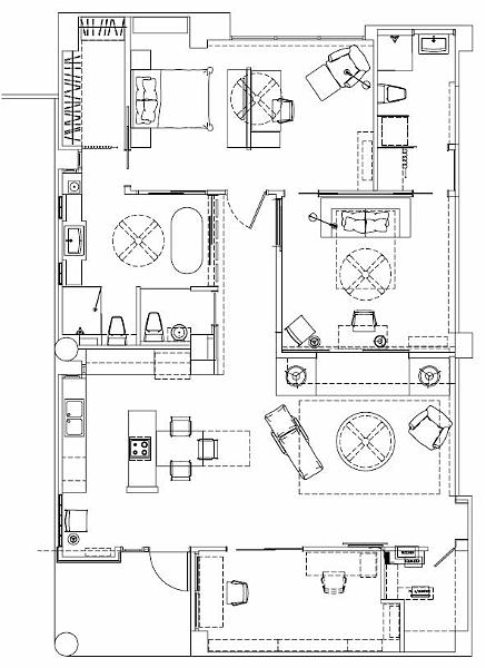
  floor_plan_2007-08-02.jpg - 02 August 2007

Jon's office is along the western wall alongside the entrance. East of his office is the living room. A 46" LCD will be wall mounted on the exterior side of Jon's office wall.

The adjoining room along the southern wall is the guest bedroom.

Note that Jon's altered the kitchen to open it up. An island with cooktop is a change from the U-shaped countertop as depicted in the February plan.

The master bath (against the the northern wall and east of the kitchen) features a fullsize tub plus shower stall. The half bath for visitors adjoins the kitchen.

 
 
 
 
 
 

  | 2 | 02 August 2007 Jon's office is along the western wall alongside the entrance. East of his office is the living room. A 46" LCD will be wall mounted on the exterior side of Jon's office wall. The adjoining room along the southern wall is the guest bedroom. Note that Jon's altered the kitchen to open it up. An island with cooktop is a change from the U-shaped countertop as depicted in the February plan. The master bath (against the the northern wall and east of the kitchen) features a fullsize tub plus shower stall. The half bath for visitors adjoins the kitchen. | floor_plan_2007-08-02.jpg | 2007-08-02 19:19:30 Download
Total images: 2 | Help